【居間・リビング】床暖房付き13.5帖のLDK カウンターキッチンのリビングダイニングキッチン
-
バストイレ別
-
室内洗濯機置場
-
TVモニタ付きインターホン
-
カウンターキッチン
-
独立洗面台
-
浴室乾燥機
-
オートロック
-
エレベーター
-
ネット使用料無料

リビング
洋室
洋室
洋室
玄関- 保証金
- -
- 敷引 / 償却
- - / -
- 敷金積み増し
- ペット飼育:1ヶ月
- 間取り / 詳細
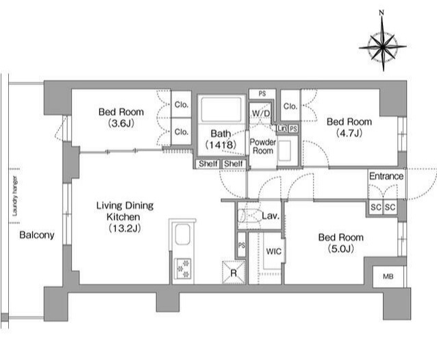
- 3LDK
LDK 13.5帖/洋室 4.7帖/洋室 4.0帖/洋室 3.5帖 - 向き
- 北
- 専有面積
- 58.36㎡
- バルコニー
(テラス)面積 - -
- 所在階 / 階建て
- 1階 / 8階建
- 建物構造
- 鉄筋コンクリート
- 築年月
- 2025年8月(新築)
- 種別
- 賃貸マンション
- 保険会社 / 料金
- 有 16,550円 / 2年
- 保証会社 / 料金
- 必加入 / その他
初回総賃料の50% 月額総賃料の1% - 駐車場
- 空有(5台) 27,500円
- 現況
- 完成済み
- 入居可能時期
- 即時
- 設備条件
-
- ペット相談 / デザイナーズ / 保証人不要 / 2人入居可 / 室内洗濯機置場 / フローリング / バルコニー / 都市ガス / 公営水道 / 公共下水 / エレベーター / 駐輪場 / バイク置場あり / 敷地内ごみ置き場 / 駐車2台可 / 外観タイル張り / コンロ2口以上 / 食器洗い乾燥機 / システムキッチン / コンロ3口 / カウンターキッチン / バス・トイレ別 / 追焚機能浴室 / 浴室乾燥機 / 温水洗浄便座 / シャワー / 独立洗面台 / エアコン / 床暖房 / トランクルーム / シューズボックス / CS / BS / インターネット対応 / ネット使用料無料 / オートロック / TVモニタ付インターホン / 宅配ボックス / 防犯カメラ / 24時間ゴミ出し可 / エアコン2台 / エアコン3台 / 角部屋 / 初期費用カード決済可
- 契約期間
- 2年
- 賃貸区分
- 一般
- 更新料
- 1ヶ月(新賃料)
- 更新事務手数料
- -
- 総戸数
- 98戸
- 特優賃
- -
- 取引態様
- 仲介
- 物件番号
- 96897968
- 管理コード
- 1407JSACH
- 情報更新日
- 2025年11月01日
- 次回更新予定日
- 2025年11月15日
- 備考
- お問い合わせは直接当店に!・保証人不要でご契約!お気軽にご相談下さい。~高級賃貸まで!転勤や社宅、初めての一人暮らし、1LDK、2LDK、二人暮らし、ご結婚、同棲、ご家族ファミリータイプのお引越し、ルームシェアやデザイナーズ!セカンドハウス!治安や周辺環境はもちろん賃貸に関する事お任せ下さい。大田区蒲田周辺に強い会社です。賃貸お部屋探しは地元密着の蒲田大森不動産へ!
人気賃貸おすすめ物件等スタッフが住んでいるからこそ分かる部分までご説明させて頂きます。地元の人から評判や評価の高いお店飲食店etc
品川区大田区京浜東北線、大森駅、蒲田駅、京浜急行本線の立会川駅、大森海岸駅、平和島駅、大森町駅、梅屋敷駅、京急蒲田駅、雑色駅、六郷建駅、京急空港線、京急蒲田駅、糀谷駅、大鳥居駅、穴守稲荷駅、東急池上駅線、蒲田駅、蓮沼駅、池上駅、千鳥町駅、久が原駅、東急多摩川線、蒲田駅、矢口渡駅、武蔵新田駅、下丸子駅、鵜の木駅、沼部駅、多摩川駅、都営浅草線始発終点の西馬込駅、馬込駅、中延駅、戸越駅、五反田駅!
初期費用や契約内容、入居希望時期に合わせていつから部屋探しすればいいかわからない!テレワークのスペースが欲しい、子供が大きくなってきたので、広いお部屋に住み替えたい!
お引越しにはある程度まとまったお金がかかりますので、出来るベストなご提案を心掛けご対応させて頂きます。1年以内解約時賃料1ヶ月分の違約金有◆詳細ご見学ご依頼等お気軽に03-6404-9221まで◇HPに動画写真パノラマ画像類似物件多数掲載中◇蒲田駅品川区大田区の賃貸!お任せ下さい。弊社ホームページには、写真や動画はもちろん、360度のパノラマ画像や周辺環境など日々スタッフが撮影したものを多数掲載しております!大田区エリアに強い会社です。
大田区の中心地蒲田を拠点にJR京浜東北線はもちろん大田区近辺の賃貸お部屋探しは蒲田大森不動産へお任せ下さい。〇〇駅周辺のスーパー!?駅前にクリーニング屋さんやドラッグストア!?インターネットの速度は?初期費用っていくら位かかる?審査って何を見られるの!?審査基準の収入って?家賃の相場、収入に合わせた家賃って?ルームシェアのメリットデメリット!オンライン内見可などなど賃貸不動産に関する事なら何でもご相談下さい。
※物件お部屋により仲介手数料最大無料でご紹介可能なお部屋もございます。 -
1階
2LDK (45.20㎡)
19万円(1.39万円/坪)
-
1階
2LDK (45.20㎡)
19万円(1.39万円/坪)
-
1階
2LDK (45.20㎡)
19万円(1.39万円/坪)
-
1階
3LDK (60.20㎡)
24.6万円(1.35万円/坪)
-
1階
2LDK (45.20㎡)
19.4万円(1.42万円/坪)
-
1階
2LDK (45.20㎡)
19万円(1.39万円/坪)
-
2階
2LDK (45.20㎡)
19.4万円(1.42万円/坪)
-
2階
3LDK (55.20㎡)
24.4万円(1.46万円/坪)
-
2階
3LDK (58.36㎡)
24.8万円(1.41万円/坪)
-
2階
3LDK (61.00㎡)
26万円(1.41万円/坪)
-
2階
1LDK (37.20㎡)
16.4万円(1.46万円/坪)
-
2階
2LDK (45.20㎡)
19.4万円(1.42万円/坪)
-
2階
2LDK (45.20㎡)
19.4万円(1.42万円/坪)
-
2階
2LDK (45.20㎡)
19.4万円(1.42万円/坪)
-
2階
2LDK (45.20㎡)
19.4万円(1.42万円/坪)
-
2階
1LDK (37.20㎡)
16.4万円(1.46万円/坪)
-
2階
2LDK (45.20㎡)
19.4万円(1.42万円/坪)
-
3階
3LDK (55.20㎡)
24.4万円(1.46万円/坪)
-
3階
2LDK (45.20㎡)
19.4万円(1.42万円/坪)
-
4階
2LDK (63.65㎡)
27万円(1.4万円/坪)
-
5階
2LDK (45.20㎡)
19.7万円(1.44万円/坪)
-
5階
2LDK (45.20㎡)
19.7万円(1.44万円/坪)
-
5階
2LDK (45.20㎡)
19.7万円(1.44万円/坪)
-
5階
2LDK (42.19㎡)
19.2万円(1.5万円/坪)
-
5階
2LDK (42.19㎡)
19.2万円(1.5万円/坪)
-
6階
3LDK (60.20㎡)
25.3万円(1.39万円/坪)
-
コンビニエンスストア
まいばすけっと 大森西4丁目店
64m(1分)
-
コンビニエンスストア
ローソンストア100 大森西店
138m(2分)
-
コンビニエンスストア
ローソン 大森西四丁目店
280m(4分)
-
大学
東邦大学 大森キャンパス(医学部・看護学部)
367m(5分)
-
保育園
大森西第二保育園
419m(6分)
-
警察
大森警察署大森西交番
454m(6分)
-
公園
邦西第二児童公園
468m(6分)
-
スーパー
全日食チェーンスーパーイコール
543m(7分)
-
総合病院
東邦大学医療センター大森病院
550m(7分)
-
ドラッグストア
ドラッグストア・スマイル 大森町店
604m(8分)
-
ファミリーレストラン
ジョナサン 梅屋敷店
646m(9分)
-
弁当
オリジン弁当 大森町店
682m(9分)
-
公園
大田区立邦西公園
709m(9分)
-
ファーストフード
マクドナルド 大森町店
713m(9分)
-
その他
キャン・ドゥ 大森町店
721m(10分)
-
クリーニング
みつぼしクリーニング
722m(10分)
-
ドラッグストア
ツルハドラッグ 梅屋敷店
732m(10分)
-
スーパー
新鮮市場 レ・アルかきぬま
781m(10分)
-
小学校
入新井第二小学校
916m(12分)
物件の特徴
セールスポイント
新築ショッピング施設マチノマ目の前!インターネット無料◆HPに写真50枚動画360度パノラマ画像類似物件等多数掲載中◆マチノマには、スーパーライフをはじめフードコートには多数の飲食店や自転車やドラッグストア、電気屋さん、クリニック等目の前にあると便利なお店が多数入っております。過半数のスタッフが大田区在住!地元地域密着の蒲田大森不動産へお任せ下さい。住んで、選んで良かったと言って頂けるお部屋探し!
ポイント
新築 ファミリータイプ高級賃貸マンション 大田区 不動産屋 おすすめ 2人暮らし
担当者のコメント
パノラマ画像
基本情報
設備条件
その他
コンフォリア・リヴ大森西の他の部屋
周辺施設
近隣の物件
コンフォリア・リヴ大森西
24.4万円
20,000円
3LDK(58.36㎡)
木原 寛